Beautiful Project | Imtiaz and Zaha Hadid
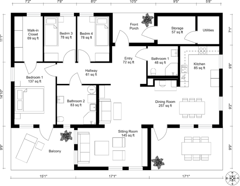
1206 sq ft.
Our vision is to set a new standard for luxury living in Dubai by combining trust, innovation and design excellence. We create spaces that inspire confidence, deliver measurable value and reflect the vibrant lifestyle of the city. Through expertise, digital strategies and personalized services, we connect people with properties that go beyond expectations and become lasting investments.



